Stümpfling5

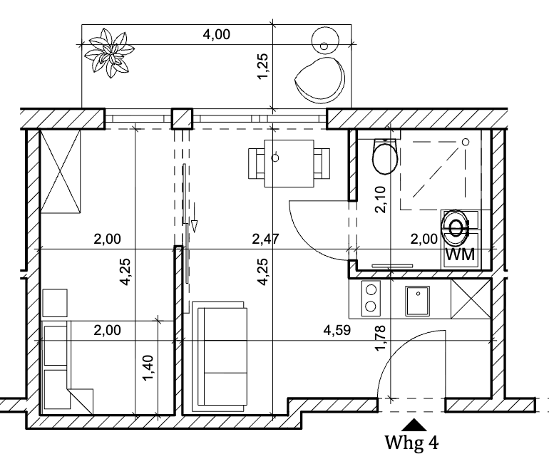
Wohnung 0.04

Frei

1.235,00 € (kalt)

Nebenkosten: 200,00 €

2 Zimmer | EG | 30,00 m²

Exposé herunterladen

Die Wohnung im Erdgeschoß einer kleinen Wohnanlage im mediterranen Stil in München-Perlach liegt auf der Gartenseite mit Terrasse. Der zeitlose Stil des Gebäudes mit seinen bodentiefen Fensterfronten mit viel Glas lässt den Lebensraum seiner Bewohner neu gestalten.

Ein echtes Architektenhaus, designed, geplant, ausgeführt und bezugsfertig übergeben von der Münchener Hausbau Architektur GmbH Maximilianstrasse. 21 in München.

Die hier angebotene 2-Zimmer Wohnung besticht durch einen klugen Grundriss und Terrasse. Sie befindet sich im Erdgeschoß mit einem Lift direkt von der Tiefgarage nach oben.

 

Nebenkosten monatlich € 200,-
Tiefgarage inkludiert

Anfrage senden

Sie haben aus unserem Wohnungsangebot Ihren Favoriten ausgewählt und möchten sich zu diesem Wohnobjekt umfassend informieren. Füllen Sie dazu bitte das untenstehende Formular aus. Was erwartet Sie: Nach Eingang Ihrer Daten nehmen wir gerne per Mail oder telefonisch Kontakt mit Ihnen auf um ein unverbindliches Erstgespräch zu vereinbaren.

Wohnung 0.04 | Frei

Anfrage stellen