Stümpfling5

Wohnung 0.01

Vermietet

1.155,00 € (kalt)

Nebenkosten: 245,00 €

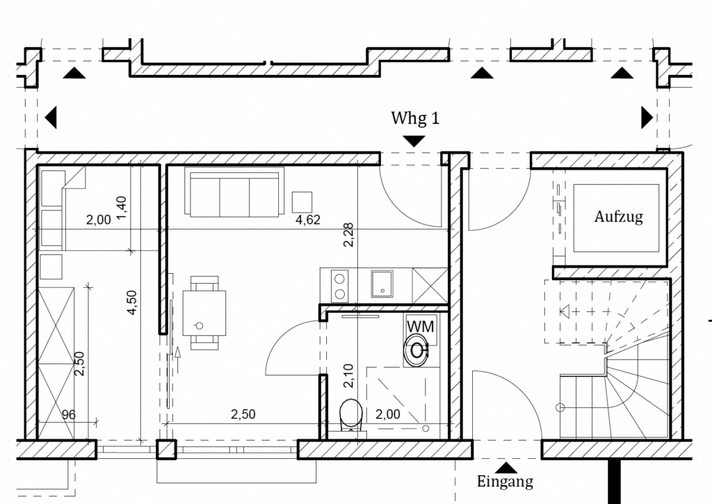
2 Zimmer | EG | 30,10 m²

Exposé herunterladen

Neubau einer kleinen Wohnanlage im mediterranen Stil in München-Perlach.

Der zeitlose Stil des Gebäudes mit seinen bodentiefen Fensterfronten mit viel Glas lässt den Lebensraum seiner Bewohner neu gestalten.

Ein echtes Architektenhaus, designed, geplant, ausgeführt und bezugsfertig übergeben von der
Münchener Hausbau Architektur GmbH Maximilianstrasse. 21 in München.
Die hier angebotene 2-Zimmer Wohnung besticht durch einen klugen Grundriss und mit 2 Terrassen. Sie befindet sich im Erdgeschoss mit einem Lift direkt von der Tiefgarage nach oben.

 

Monatliche Kosten:

Nebenkosten Vorauszahlung, inkl. Storm € 245
Tiefgarage € 85